80㎡美式田园风,这个小家温馨又浪漫!

[复制链接]

该用户从未签到

分享到:
发表于 2018-1-31 10:20 手机版 | 显示全部楼层 |阅读模式

马上注册荣耀渭南网,结交渭南乡党,享用更多功能,让你轻松玩转荣耀网

您需要 登录 才可以下载或查看,没有账号?立即注册

x
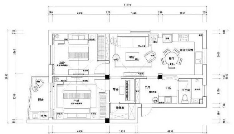
这是一套老房子改造的案例,房子的使用面积大约80平,整体以现代儒雅的美式风格装修,呈现出一个独特的端庄感。


客厅侧边跟电视墙上面都有门,侧边的收纳展示柜以入墙式的设计与旁边的门搭配得和谐精致。

电视墙两侧对称的门,搭配电视墙上的壁纸,整体氛围也是高档端庄。

沙发靠在窗边摆放,小布局的客厅在优雅档次的布置下,也是呈现出一个精致大方的空间氛围。

田园美式的布艺沙发,搭配暖木色的茶几台面,茶几还有丰富的收纳,紧凑实用又美观。

窗边挂上一幅经典美式的装饰画,结合独特的卷帘,优雅舒适。


客厅、餐厅与厨房整个空间都连贯一体,通透大气。


餐厅的四人圆形餐桌,与客厅之间隔着一个门洞造型,让空间之间的独立性更加明显。

仿古砖的地面,搭配复古范的餐桌椅,整体给人以稳重优雅的档次感。

厨房围绕着餐厅布局,整个空间贴上暖心精致的墙面砖,小空间也显得温馨而又大方。

餐厅背景墙以银色边框造型,中间挂上一组照片墙,以清新的草绿色作为背景,整个空间显得清新而又精致。


卧室床头背景墙以清新的壁纸作为基础,搭配上异域风范的床单,呈现出主人的独特气质。半透明的窗帘,让整个房间的采光更加明亮。


衣柜以百叶门作为柜门,搭配在这个优雅的空间显得更加和谐大方。

儿童房墙面以淡淡的粉色为基调,床头上挂上几幅装饰画,并在靠窗位置摆一张小书桌,整体显得格外的粉嫩浪漫。

儿童房的衣柜推拉门同样是百叶门样式的。

在空间角落里还放了一个小黑板,黑板搁架上面是杂物收纳盒,方便孩子把小物件摆上去,避免杂乱。


卫生间干区的洗手盆与公共区域做了一面白色的屏风隔断,洗手盆前面的墙面贴上黑白马赛克砖,白色洗手柜结合一个复古调的洗手盆,展示出优雅大方的氛围感。

淋浴房里面装了个壁龛,并以玻璃隔层,方便卫浴用品的收纳。马桶后方的墙面,则是贴着蓝色的墙砖,与棕色仿古砖形成冷暖交融的搭配,让空间更加和谐高档。
20180131_194872_1517365142588.jpg
20180131_194872_1517365142778.jpg
20180131_194872_1517365142702.jpg
20180131_194872_1517365142637.jpg
20180131_194872_1517365142508.jpg
20180131_194872_1517365142891.jpg
20180131_194872_1517365143049.jpg
20180131_194872_1517365143093.jpg
20180131_194872_1517365142950.jpg











荣耀渭南网---每天我们都在影响这座城市!

该用户从未签到

发表于 2018-2-26 11:30 手机版 | 显示全部楼层
装修这样的多钱
荣耀渭南网---每天我们都在影响这座城市!

该用户从未签到

 楼主| 发表于 2018-2-27 14:43 手机版 | 显示全部楼层

加微信吧,{:qqemoji1:}{:qqemoji1:}{:qqemoji1:}
荣耀渭南网---每天我们都在影响这座城市!

该用户从未签到

 楼主| 发表于 2018-5-15 22:52 手机版 | 显示全部楼层

加我微信18091372085
荣耀渭南网---每天我们都在影响这座城市!

该用户从未签到

发表于 2018-5-19 23:53 手机版 | 显示全部楼层
这样的装修预算多少
荣耀渭南网---每天我们都在影响这座城市!

该用户从未签到

 楼主| 发表于 2018-5-20 11:11 手机版 | 显示全部楼层
桃之夭夭瑾 发表于 2018-5-19 23:53
这样的装修预算多少

主页加微信,
荣耀渭南网---每天我们都在影响这座城市!

使用高级回帖 (可批量传图、插入视频等)快速回复

您需要登录后才可以回帖 登录 | 立即注册

本版积分规则   Ctrl + Enter 快速发布  

发帖时请遵守我国法律,网站会将有关你发帖内容、时间以及发帖IP地址等记录保留,只要接到合法请求,即会将信息提供给有关政府机构。
返回顶部快速回复返回列表找客服
快速回复 返回顶部 返回列表