[装修日记] 64㎡极简小二居,原木自然,简单装修也能有档次!

[复制链接]

该用户从未签到

分享到:
发表于 2018-6-22 10:40 手机版 | 显示全部楼层 |阅读模式

马上注册荣耀渭南网,结交渭南乡党,享用更多功能,让你轻松玩转荣耀网

您需要 登录 才可以下载或查看,没有账号?立即注册

x
这套房子的套内面积64平米,在有限的空间内,通过简简单单的空间搭配,在舒适精致的软装衬托下,装扮出一个舒适精致的大方空间感。

客厅

客厅以简洁的设计为主,舒适的布艺沙发与现代大方的空间,在细节方面加入禅意的新中式元素,让空间显得格外的儒雅大气。

沙发墙角的一枝竹子装饰,搭配禅意极简造型的凳子,显得格外的端庄舒适。

边几上禅意端庄的小茶具,也为空间带来了几分儒雅舒适的清新气息。

现代大方的空间,简简单单的家居搭配,呈现的是一个舒适精致的空间,令人轻松愉悦。

书房+餐厅

在客厅与厨房之间,摆一个长条的桌子作为餐桌与书桌使用,在保持空间宽敞的基础利用好边角位置,让空间功能更加丰富。

如果家里来了客人,靠墙坐不下的时候,可以把这个桌子挪到客厅中间,再加几把简易的折叠凳,瞬间就坐得下了。

平时家里人少,原本靠墙摆放其实就够用了。

卧室

次卧与客厅区域就隔着一扇屏风推拉门,若隐若现的空间,在简简单单的硬装与家居搭配下,显得格外的端庄情趣。

取消床头柜的设计,以一张小书桌作为床头的设计,实用而又精致。

主卧

主卧同样在极简的空间基础下,床头白了一个展示架作为床头柜,同时摆了一张懒人沙发,在闲暇之余,可以躺着看书玩手机。

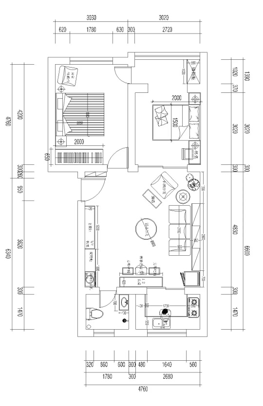
平面布置图
20180622_194872_1529635367209.jpg
20180622_194872_1529635367299.jpg
20180622_194872_1529635367445.jpg
20180622_194872_1529635367497.jpg
20180622_194872_1529635367385.jpg
20180622_194872_1529635367603.jpg
20180622_194872_1529635367749.jpg
20180622_194872_1529635367558.jpg
20180622_194872_1529635367656.jpg



荣耀渭南网---每天我们都在影响这座城市!

使用高级回帖 (可批量传图、插入视频等)快速回复

您需要登录后才可以回帖 登录 | 立即注册

本版积分规则   Ctrl + Enter 快速发布  

发帖时请遵守我国法律,网站会将有关你发帖内容、时间以及发帖IP地址等记录保留,只要接到合法请求,即会将信息提供给有关政府机构。
返回顶部快速回复返回列表找客服
快速回复 返回顶部 返回列表