138572.36平方米!临渭区西塬这里拟建物流园区

  [复制链接]

该用户从未签到

分享到:
发表于 2025-10-17 09:41 | 显示全部楼层 |阅读模式

马上注册荣耀渭南网,结交渭南乡党,享用更多功能,让你轻松玩转荣耀网

您需要 登录 才可以下载或查看,没有账号?立即注册

x

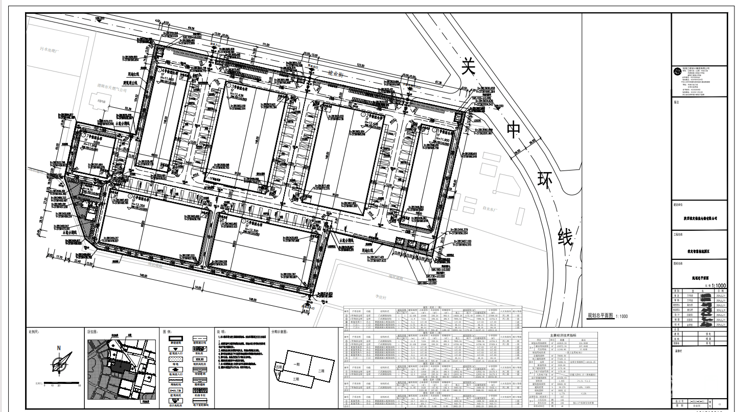
根据自然资源部文件《关于加强和规范规划实施监督管理工作的通知》(自然资发〔2023〕237号),现对荣发智慧物流园区项目建设工程规划许可证进行批前公示。

该项目位于渭南市临渭区美好生活示范区建业路,建设单位为陕西荣发物流仓储有限公司。项目规划用地面积为138572.36平方米,项目拟建筑面积为78600.59平方米。现向社会公示,项目总平图详见附图。公示期内持有不同意见的利益相关人可向渭南市临渭区自然资源局调查监测股反映。

公示期限:2025年10月16日—2025年10月27日

公示电话:0913-8169132

附图:项目总平图

微信图片_20251017093947_935_39.png

渭南市临渭区自然资源局
2025年10月16日

(来源:临渭区自然资源局)

荣耀渭南网---每天我们都在影响这座城市!

该用户从未签到

发表于 2025-10-17 10:02 手机版 | 显示全部楼层
荣耀渭南网---每天我们都在影响这座城市!

签到天数: 120 天

[LV.7]常住居民III

发表于 2025-10-17 10:24 手机版 | 显示全部楼层
唉!!不知道说啥好!!!物流园先看看交通方便不?拍脑子滴决定。最后也是不了了之
荣耀渭南网---每天我们都在影响这座城市!

该用户从未签到

发表于 2025-10-17 10:24 手机版 | 显示全部楼层
西塬建物流园区
荣耀渭南网---每天我们都在影响这座城市!

该用户从未签到

发表于 2025-10-17 10:52 手机版 | 显示全部楼层
@不倒翁 发表于 2025-10-17 10:24
唉!!不知道说啥好!!!物流园先看看交通方便不?拍脑子滴决定。最后也是不了了之

先修了再说。
荣耀渭南网---每天我们都在影响这座城市!

该用户从未签到

发表于 2025-10-17 11:21 手机版 | 显示全部楼层
荣耀渭南网---每天我们都在影响这座城市!

该用户从未签到

发表于 2025-10-17 11:59 手机版 | 显示全部楼层
大力发展美好生活示范区
荣耀渭南网---每天我们都在影响这座城市!

签到天数: 33 天

[LV.5]常住居民I

发表于 2025-10-17 12:27 手机版 | 显示全部楼层
这个物流园真够大呀
荣耀渭南网---每天我们都在影响这座城市!

该用户从未签到

发表于 2025-10-17 13:11 手机版 | 显示全部楼层
荣发智慧物流园,建在西塬上……
荣耀渭南网---每天我们都在影响这座城市!

该用户从未签到

发表于 2025-10-17 13:12 手机版 | 显示全部楼层
@不倒翁 发表于 2025-10-17 10:24
唉!!不知道说啥好!!!物流园先看看交通方便不?拍脑子滴决定。最后也是不了了之

美好生活示范区嘛……
荣耀渭南网---每天我们都在影响这座城市!

使用高级回帖 (可批量传图、插入视频等)快速回复

您需要登录后才可以回帖 登录 | 立即注册

本版积分规则   Ctrl + Enter 快速发布  

发帖时请遵守我国法律,网站会将有关你发帖内容、时间以及发帖IP地址等记录保留,只要接到合法请求,即会将信息提供给有关政府机构。
返回顶部快速回复返回列表找客服
快速回复 返回顶部 返回列表